The Bradley at Overlook at Liberty Square
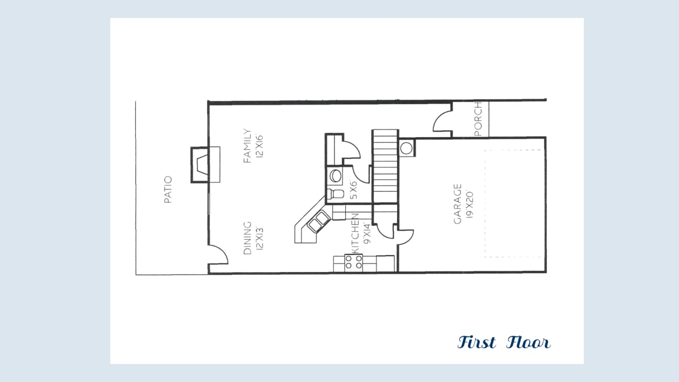
The "Bradley" floor plan welcomes you home to a foyer entrance, to this open concept family room with fireplace, dining room, kitchen with granite counter tops, shaker style cabinets with soft close drawers and doors, stainless steel appliances, laundry room and the powder room for guests. Upstairs you'll find the master suite with walk in closet, separate tub/shower in the master bath, two additional bedrooms, full bath & laundry room. Professional landscaping. Two car garage. Conveniently located to shopping, dining & entertainment.
- 1,618 Square Feet
- Optional Basement, subject to lot availability
Listed by: Derick Mauldin 770-655-0114 or Kimberli Causby 404-313-4760







