The Whitley at Overlook at Liberty Square
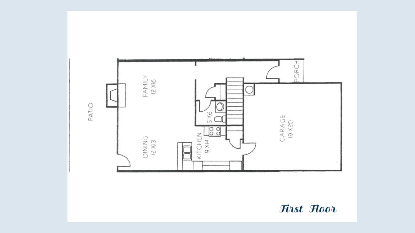
The "Whitley" floor plan welcomes you home to a foyer entrance, dining room, kitchen with granite counter tops, shaker style cabinets with soft close drawers and doors, stainless steel appliances with view to family room with cozy fireplace, and the powder room for guests. Upstairs you'll find the master suite with walk in closet, double vanity, shower in the master bath, two additional bedrooms, laundry room & full bath. Professional landscaping. Two car garage. Conveniently located to shopping, dining & entertainment.
- 1,705 Square Feet
- Optional Basement, subject to lot availability
Listed by: Derick Mauldin 770-655-0114 or Kimberli Causby 404-313-4760







